|
Oliver Arend
Administrator
Administrator

Registriert seit: Aug 2000
Wohnort: Great Falls, VA, USA
Verein: RMV/Solaris/AGM/TRA L1/TCV/MDRA/NOVAAR
Beiträge: 8413
Status: Offline
|
Siggi hat mal für seine Motoren einen einfachen Schubmessstand auf Federbasis mit fortlaufender Papierrolle als Kurvenaufzeichnung gebaut. Sowas sollte bei entsprechender Dimensionierung doch auch für Euch reichen, oder? Bei ihm wars waagerecht, IIRC, aber das Konzept lässt sich ja in beliebigen Richtungen umsetzen.
Oliver
|
|
FabianH
Grand Master of Rocketry
Supervisor

Registriert seit: Okt 2003
Wohnort: Gevelsberg
Verein: Ramog, Solaris-RMB, FAR
Beiträge: 4123
Status: Offline
|
Dann könnte man auch an die Papierolle einen Motor machen der über einen Schalter anfängt sich zu drehen, der Schalter wird durch den ersten Schub des Motors betätigt. und bei der kurzen Brennzeit ann man dir Rolle auch recht schnell laufen lassen so dass man sehr genaue Daten davon ablesen kann!
MfG Fabian
|
|
RalfB
Grand Master of Rocketry
Moderator

Registriert seit: Apr 2004
Wohnort:
Verein: AGM, Tripoli L2
Beiträge: 3007
Status: Offline
|
Hi Robert,
ich werde am Wochenende mal versuchen eine Digicam zu leihen. Dann reiche ich mal ein Foto nach.
Die Konstruktion ist für den Aufwand wirklich nicht schlecht. Man müßte nur noch ein wehnig mit verschiedenen Federn testen um den Messweg zu vergrößern.
Eine Küchenwaage nit vertikaler Skaler (Zeiger) dürfte für einen Schub von 1 bis 3 kg aber noch besser sein. Ich habe gestern mal eine alte Küchenwaage von Mutti instand gesetzt. Die macht bei 3 kg einen Weg von 360 Grad. Wenn man nun die Halterung für den MH senkrecht oben drauf montiert, so dass der Abgasstrahl neben der Waage her pfeifen kann, hat man bestimmt eine brauchbare Genauigkeit und einen riesigen Anzeigebereich. Mann muss nur sicherstellen, das man die Sache größer vorbeschweht als sich Schub entwickeln kann sonst hebt die Geschicht ab.
Ich werde berichten wie es klappt.
#Don’t Look Up
|
|
Oliver Arend
Administrator
Administrator

Registriert seit: Aug 2000
Wohnort: Great Falls, VA, USA
Verein: RMV/Solaris/AGM/TRA L1/TCV/MDRA/NOVAAR
Beiträge: 8413
Status: Offline
|
Du misst dann aber vor allem ein Drehmoment und keine Kraft, da solltest Du evtl. eine entsprechende Vorrichtung bauen, die an einem Hebel, wo außen der MH schiebt, die Kraft direkt über der Waage abgreift. So kann man auch den Messbereich verändern.
Oliver
|
|
FabianH
Grand Master of Rocketry
Supervisor

Registriert seit: Okt 2003
Wohnort: Gevelsberg
Verein: Ramog, Solaris-RMB, FAR
Beiträge: 4123
Status: Offline
|
Ich habe mal etwas geCADet: MfG Fabian Folgende Datei wurde angehängt:
|
|
FabianH
Grand Master of Rocketry
Supervisor

Registriert seit: Okt 2003
Wohnort: Gevelsberg
Verein: Ramog, Solaris-RMB, FAR
Beiträge: 4123
Status: Offline
|
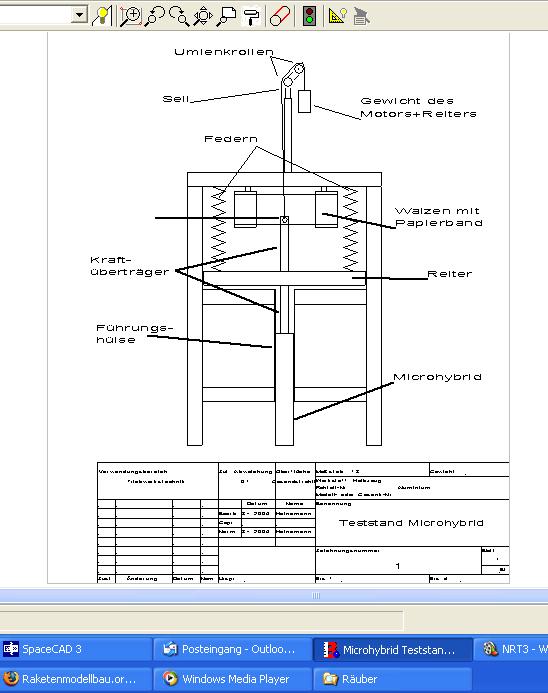
Zur Funktionsweise: Der Microhybrid gleitet in einer Fürhrunghülse, der Kraftüberträger gibt den Schub an den Reiter weiter, dieser gleitet auch sehr leicht in Schienen. Durch den nächsten Kraftüberträger, der am Ende einen Bleistift hat, wird eine Kurve auf das laufende Papierband gezeichnet.
MfG Fabian
|
|
FabianH
Grand Master of Rocketry
Supervisor

Registriert seit: Okt 2003
Wohnort: Gevelsberg
Verein: Ramog, Solaris-RMB, FAR
Beiträge: 4123
Status: Offline
|
Ich habe mal überlegt.........Das Gewicht des Microhybrids und in meinem Fall auch das des Reiters wirkt sich ja auch auf die Schubkurve aus deshalb habe ich nochmal etwas verändert: MfG Fabian Folgende Datei wurde angehängt:
|
|
Oliver Arend
Administrator
Administrator

Registriert seit: Aug 2000
Wohnort: Great Falls, VA, USA
Verein: RMV/Solaris/AGM/TRA L1/TCV/MDRA/NOVAAR
Beiträge: 8413
Status: Offline
|
Masse von Reiter und Motor sind aber konstant, ist also nur ne Frage der Einstellung. Deine Zusatzgewicht-mit-Umlenkrolle-Konstruktion ist überflüssig, würde ich sagen. Und die abnehmende Treibstoffmasse kannst Du sowieso nicht ausgleichen, die is mit einer Gewichtskraft von 0,2 N oder so aber auch vernachlässigbar.
Oliver
|
|
FabianH
Grand Master of Rocketry
Supervisor

Registriert seit: Okt 2003
Wohnort: Gevelsberg
Verein: Ramog, Solaris-RMB, FAR
Beiträge: 4123
Status: Offline
|
Ja, aber das gewicht des Reiters muss ich beim eingeben der Werte in z.B. Spacecad wieder abziehen, mit dieser Umlenkanlage habe ich nur den wirklichen Schub!
MfG Fabian
|
|
Oliver Arend
Administrator
Administrator

Registriert seit: Aug 2000
Wohnort: Great Falls, VA, USA
Verein: RMV/Solaris/AGM/TRA L1/TCV/MDRA/NOVAAR
Beiträge: 8413
Status: Offline
|
Nein, Du verlegst von Anfang an die Nulllinie auf Deiner Papierskala...
Oliver
|
|
|